Vil du gerne blive klogere på, hvilke fordele et gårdhavehus har? Så kom og gå på opdagelse i vores udstillingshus på Østerlindparken 35 i Lind ved Herning.
Et hus med fokus på den aktive familie
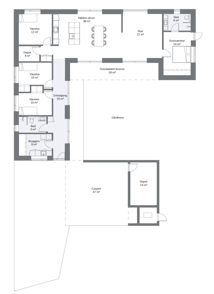
Dét, der især bør fremhæves ved huset er selve gårdhaven. Den giver gode muligheder for hyggeligt samvær på bålpladsen for hele familien. Fra stue og køkken/alrum er der samtidig udgang til en stor overdækket terrasse, der vender mod syd.
Huset er på 183 m2. Når du træder indenfor, bliver du mødt af en gang med godt lysindfald. Gangen forbinder depot, bryggers, et badeværelse og tre store værelser med resten af huset. I to af de tre værelser er der indbyggede skabe. Gangen leder videre til et stort og gennemlyst køkken/alrum, hvor der er rig mulighed for samvær, og der er god plads til den store familie. I forlængelse af køkken/alrummet er der en skøn stue. I både stue og køkken/alrum er der store vinduespartier, så du få et godt naturligt lys, mens der i køkken/alrummet er monteret et 90×120 cm ovenlysvindue med regn sensor over køkken-øen. For enden af stuen er der indgang til et soveværelse, der har eget badeværelse.
I hele huset er der gulvvarme, og i stue, køkken/alrum og værelser er der lagt vinylgulv, som er slidstærkt og meget vedligeholdelsesvenligt – perfekt til den aktive børnefamilie med husdyr.
Huset har en carport, der kan give ly til to biler samt et depot – begge beklædt i sort Ivarplank, så du er sikret minimal vedligeholdelse. Huset er opført med ensidig taghældning med tagpap og Taurus mursten, mens der på taget af carporten er installeret solceller.
Et hav af kvalitetsløsninger
I huset er der en masse kvalitetsløsninger, bl.a. 6kW solcelleanlæg med et 10 kW batteri, luft til vand varmepumpeanlæg, Velfac 200 lavenergivinduer, A2020 energimærkning, fuldautomatisk ventilationsanlæg med varmegenvinding, HTH-køkken, Troldtekt, væghængte toiletter, carport med Ivarplank, gårdhave med bålplads og meget mere.
I et standard klimahus er der på forhånd faktisk lavet tilvalg for ca. 300.00 kr., der er inkluderet i prisen.
Se mere om, hvad du får med i et klimahus.
Østerlindparken – et område med masser at byde på
Huset er placeret i nybyggerkvarteret Østerlindparken i Lind tæt på Herning. Her er du både tæt på Lind skole, daginstitution, indkøbsmuligheder, busstoppested, skove og grønne områder. Der er ligeså kort afstand til motorvejen.
Åbent
Hver søndag fra kl. 14-16 + efter aftale
Type
Gårdhavehus
Størrelse
183 m2
Energimærke
A2020
Værelser
4
Billede
Modelfoto
Vil du gerne have inspiration til, hvordan dit nye, miljøvenlige drømmehus kan se ud? Så tag et kig i vores katalog. Du kan blandt andet blive klogere på vores hustyper, hvordan vi sammen med dig skaber et miljørigtigt alternativ samt se en masse billeder fra vores tidligere byggeprojekter. Og så får du selvfølgelig også mere viden om, hvem vi er.
Bestil vores katalog her og få en online udgave leveret direkte i din indbakke.








